Casa Entre Patios
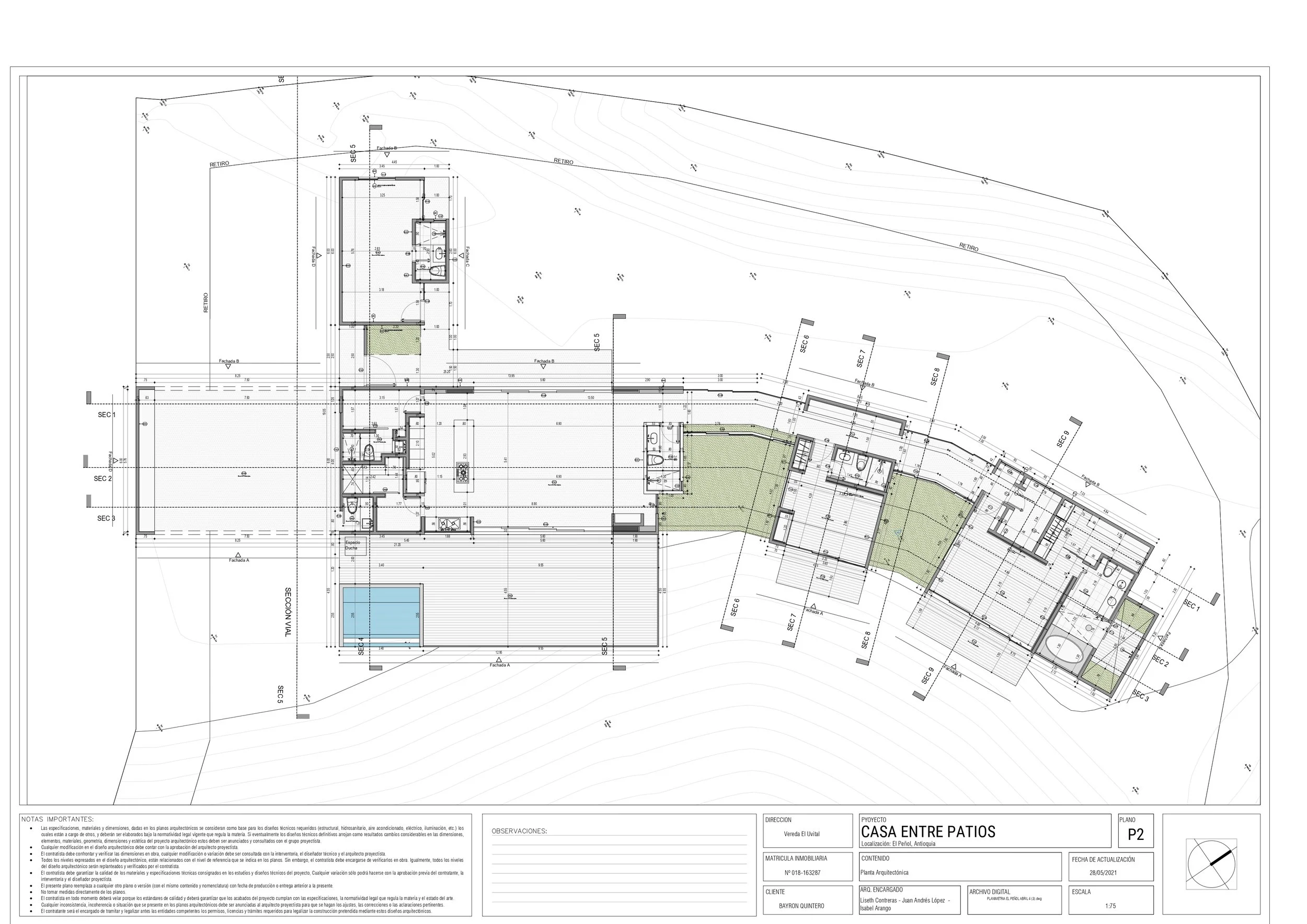
Casa Entre Patios organiza la vida en torno a una secuencia de jardines que intercalan los volúmenes y bañan los interiores de luz y ventilación cruzada. Una nave principal con cubierta a dos aguas, estructura metálica expuesta y cielorrasos de madera integra sala, comedor y cocina, abriéndose mediante grandes ventanales hacia el paisaje de agua. Muros de ladrillo, carpinterías negras y mobiliario de obra en madera construyen una atmósfera cálida y contemporánea, mientras los patios regulan el clima, dan privacidad y articulan recorridos íntimos entre naturaleza y arquitectura.